Hastas Públicas
💡 Parque Empresarial de Monte Redondo
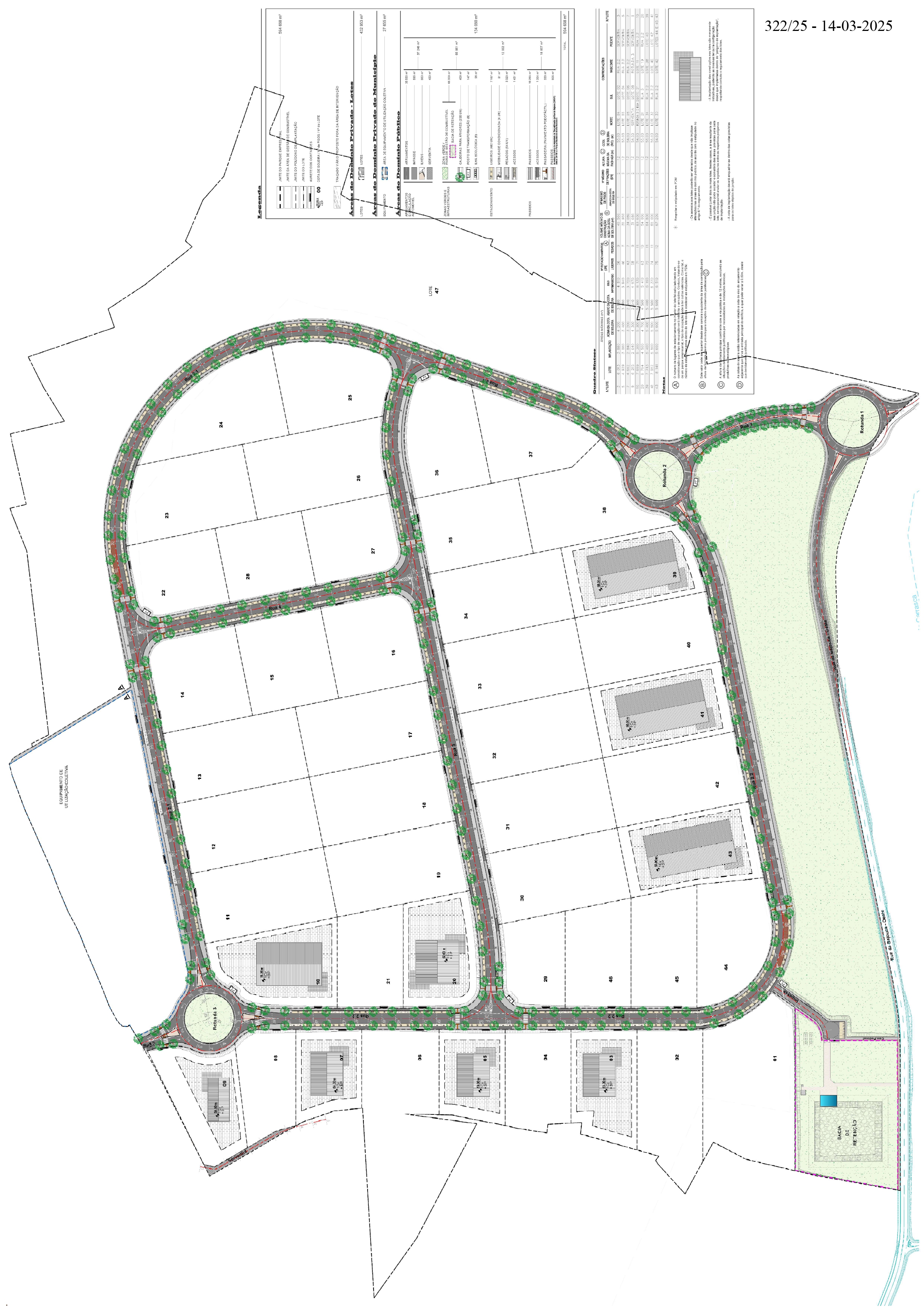
![]()
O Município irá colocar a leilão os primeiros 9 lotes do PEMR.
📅 22 de abril
🕝 14h30
📌 Sala de reuniões do Executivo, edifício da Câmara Municipal
Os lotes, as áreas e os valores-base* de licitação desta hasta pública são:
🏭 Lote 3 | 6.013 m2 | 150.325€
🏭 Lote 5 | 4.929 m2 | 123.225€
🏭 Lote 7 | 4.662 m2 | 116.550€
🏭 Lote 9 | 6.215 m2 | 155.375€
🏭 Lote 10 | 7.669 m2 | 191.725€
🏭 Lote 20 | 6.764 m2 | 169.100€
🏭 Lote 39 | 7.743 m2 | 193.575€
🏭 Lote 41 | 7.962 m2 | 199.050€
🏭 Lote 43 | 8.141 m2 | 203.525€
A localização de cada um dos lotes pode ser consultada aqui.
Para participar na hasta públicar, deverá inscrever-se até 4 de abril, enviando o requerimento e os seguintes documentos:
📃 Declaração de início de atividade, se pessoa singular nacional, ou documento equivalente, se cidadão de nacionalidade estrangeira
📃 Cópia de certidão permanente ou código de acesso à certidão permanente, se pessoa coletiva nacional, ou documento equivalente, se pessoa coletiva estrangeira
📃 Documento comprovativo da situação regularizada relativamente a contribuições para a Segurança Social e perante a Autoridade Tributária e Aduaneira, se os interessados forem empresas nacionais e cidadãos portugueses, ou da situação contributiva e tributária regularizada em Portugal e no Estado de que sejam nacionais ou no qual se situa o estabelecimento sede da empresa
📃 Formulário do projeto de investimento
📃 Declaração de conhecimento e aceitação (pessoa coletiva / pessoa singular) nos termos do Regulamento do Parque Empresarial de Monte Redondo.
Pode entregar toda a documentação por email, correio ou presencialmente no Balcão Único de Atendimento (edifício da Câmara Municipal).
Para poder participar na hasta pública, deverá integrar um dos códigos de Classificação de Atividades Económicas definidos.
☎ Se necessitar de mais informações ou de esclarecer alguma questão, pode contactar-nos para o número 244 839 529 (chamada para a rede fixa nacional).
* Os montantes apresentados têm como base o valor de 25€/m2, fixado na reunião de Câmara de 15 de outubro de 2024.
